Pre venta casa de 3 habitaciones con piscina en Privada en Cholul, Mérida
IDP: 20KG-18
- Status/Disponibilidad: Vendida
- Disponible para: Venta
- Cuota de mantenimiento: $ 1,700.00
- Tipo de propiedad: Casa
- Estado de la propiedad: Nueva
- M² de terreno: 215
- Tipo de vialidad: Privada Residencial
- Habitaciones: 3
- Baños: 3
- Medios baños: 1
- Cajones de estacionamiento: 2
- Plantas: 2
- M² de construcción: 214
- Régimen de condominio: No disponible
Descripción
Pre venta casa de 3 habitaciones con piscina en Privada en Cholul, Mérida, Yucatán.
Altamira Residencial es una privada ubicada a 10 minutos de Altabrisa, al norte de la ciudad de Mérida, en una de las zonas de mayor plusvalia, con vías de rápido acceso que te acercan a universidades, escuelas, hospitales y plazas comerciales como La Isla, Cabo Norte. En Altamira Residencial encontrarás la casa ideal, con la seguridad que brinda una privada y que tanto estas buscando.
Casa MODELO C, con entrega dentro de 7 meses.
215 m² de terreno.
214 m² de construcción.
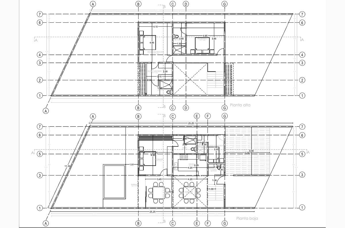
PLANTA BAJA
- Garage techado para 2 vehículos.
- Bodega.
- Sala y comedor corridos con vista a la terraza.
- Comedor a doble altura.
- Medio baño de visitas.
- Cocina integral con barra en granito.
- Terraza en jardín.
- Recámara con baño y closet.
- Cuarto de servicio y/o lavado con Baño.
- Pasillo de servicio.
PLANTA ALTA
- Recámara principal con baño vestidor.
- Recámara secundaria con baño completo y closet.
¡EXTRAS incluidos!
- Cocina integral con estufa y horno, tarja y campana de extracción.
- Closets.
- Canceles de vidrio templado en los baños.
- Jardinería.
- Preparación para Aires Acondicionados y Paneles Solares.
- Piscina de 4 x 2.50m
EXTRAS con costo adicional:
- Paneles Solares (Depende del tamaño del sistema).
- Aires acondicionados (Depende del número de AA).
SERVICIOS Y URBANIZACIÓN incluidos:
- Caseta de vigilancia 24/7.
- Contenedores de basura.
- Amplias áreas en jardín y árboles.
- Calle en concreto hidráulico combinado con adopastos y adoquines.
- Barda perimetral con circuito cerrado.
- Pozo de agua para riego de jardines comunes y área de casa club.
- Estacionamiento de visitas para 8 autos.
- Acceso con excelente diseño arquitectónico y funcionalidad.
*Precios sujetos a cambio sin previo aviso.
Para mayor información sobre esta magnífica propiedad contáctame, soy Karla González y estoy a tus órdenes al celular 9991 43 66 44, o bien, escríbeme al correo karla@sendabienesraices.com
Amenidades de la propiedad
Karla González
Asesor InmobiliarioContacta a Karla González si te interesa esta propiedad
Propiedades similares
-
Casa en venta en Gran San Pedro Cholul en Merida 3 recamaras equipada
Venta $ 3,690,000 MXN- 3 Habitaciones
- •
- 3 Baños
- •
- 2 Plantas
-
Casas en venta en privada en Conkal Merida dos plantas con alberca
Venta $ 2,710,000 MXN- 2 Habitaciones
- •
- 2 Baños
- •
- 2 Plantas
-
Casa en venta en chichi suarez de 3 recamaras una en planta baja con alberca
Venta $ 3,350,000 MXN- 3 Habitaciones
- •
- 3 Baños
- •
- 2 Plantas
